






























Chalet del Tirol 69,321m2
Residencia permanente, casa de vacaciones o zona de yoga, el Chalet del Tirol del Sur ofrece infinitas posibilidades. Su gran terraza moderna es su mayor activo. Con su amplia sala de estar y dos dormitorios, este modelo de Tirol del Sur ofrece tanto un espacio para la relajación como para la convivencia. También está disponible en una versión accesible para personas con movilidad reducida.
Marco de acero
Marco de madera
Aislamiento resistente al invierno
Ventanas de doble acristalamiento con ranuras de ventilación integradas
Bajante de lluvia
Conexiones fijas
Techo plano con desagüe
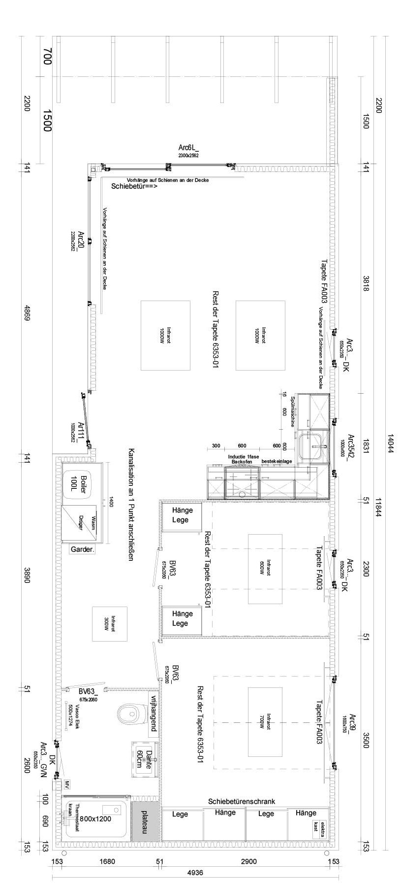
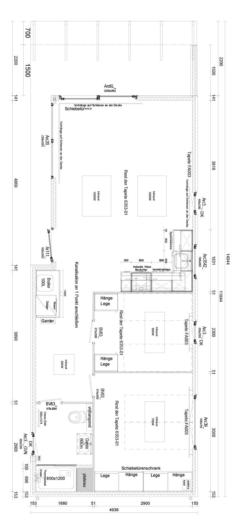
Información General
* Revestimiento exterior: Thermowood (madera)
y paneles de HPL, antracita
* Aislamiento de acuerdo con las normas alemanas de construcción (GEG)
* Ventanas de doble acristalamiento
* Puerta de entrada acristalada
* Terraza con pérgola de lujo (6 vigas)
* Bajante de agua de lluvia galvanizado
* Conexión de TV
* Calentador infrarrojo
* Pisos de vinilo de diseño
Quédate
* Lavadora de conexión en el armario del pasillo
Cuarto de Baño
* Sistema de pared impermeable
* Espejo con iluminación
* Mueble de tocador con cajones
* Ducha (80 x 120 cm)
* Inodoro suspendido
* Toallero eléctrico con calefacción
Información General
* Revestimiento exterior: Thermowood (madera)
y paneles de HPL, antracita
* Aislamiento de acuerdo con las normas alemanas de construcción (GEG)
* Ventanas de doble acristalamiento
* Puerta de entrada acristalada
* Terraza con pérgola de lujo (6 vigas)
* Bajante de canalón galvanizado
* Conexión de TV
* Calentador infrarrojo
* Pisos de vinilo de diseño
Quédate
* Conexión de lavadora en el armario del pasillo
Cuarto de Baño
* Sistema de pared impermeable
* Espejo con iluminación
* Mueble de tocador con cajones
* Ducha (80 x 120 cm)
* Inodoro suspendido
* Toallero eléctrico con calefacción
Información General
* Paredes interiores en abeto
* Vigas de madera decorativas
* Ventanas de triple acristalamiento
* Cortinas a medida
* Bomba de calor aire-aire
* Predisposición para instalación fotovoltaica (conducto vacío)
Cocina-comedor
* Muebles altos y bajos
según el plan
* Electrodomésticos
Dormitorios 1 y 2
* Armario con puertas correderas