























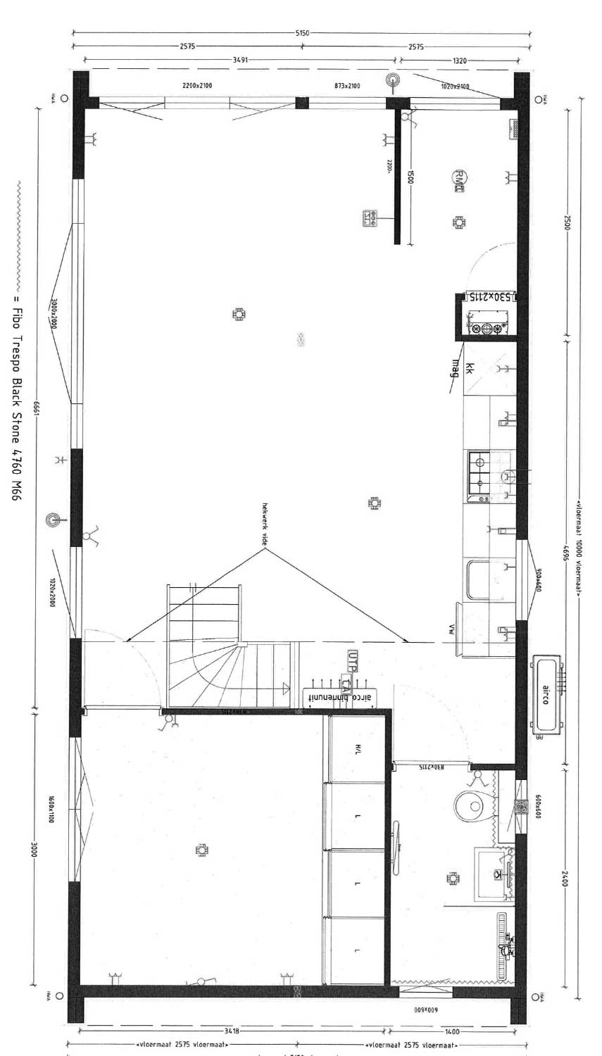
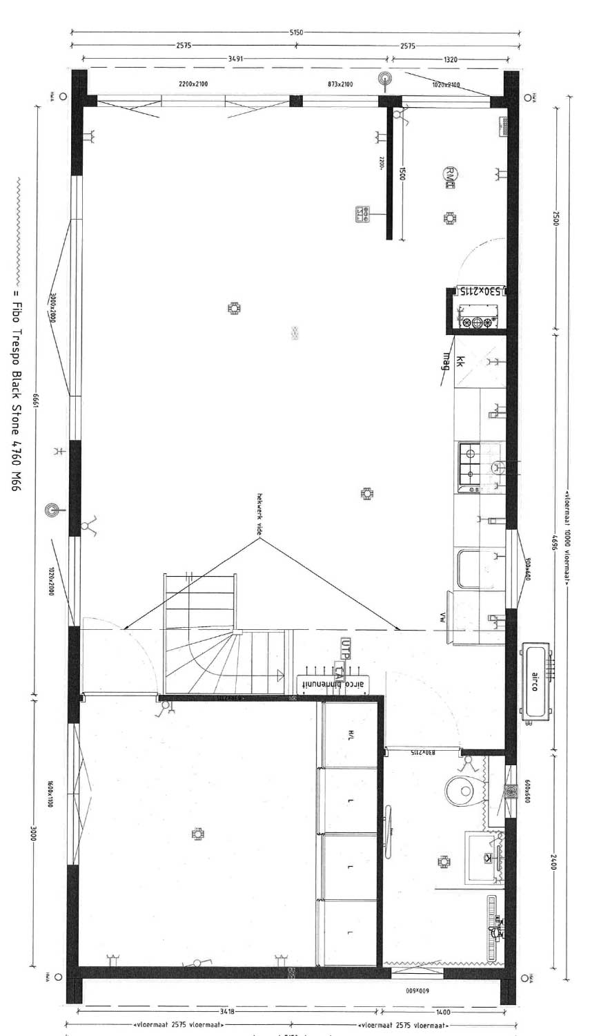
Chalet de la Selva Negra 2 habitaciones 2 nichos
Con sus 50 m2, el Chalet de la Selva Negra ofrece un espacio generoso. La amplia sala de estar, con su amplia cocina y sus dos dormitorios, ofrece suficiente espacio para reuniones de convivencia o momentos de intimidad. Encima de cada habitación hay una alcoba que se puede usar como almacenamiento o vivienda. Ven a casa y siéntete como en casa.
9,35mx5,35m : 50m2
Baño completo
Lavadero con conexión para lavadora
2 habitaciones
2 nichos con vestidor sobre los dormitorios
Sistemas de armario integrados
Iluminación LED
Conexión de TV
Calentadores infrarrojos (gas opcional)
Pisos de vinilo de diseño
Ventanas de piso a techo
Zona de entrada cubierta con vestíbulo
Grifo y enchufes para exteriores
Información General
* Fachada exterior de madera estándar
* Techo a dos aguas
* Alero del techo con canalón y descenso.
* Terraza de PCB antracita
Barandillas de madera
* Aislamiento según el código de construcción alemán (GEG)
* Ventanas de doble acristalamiento
Celosía interior
* Paredes interiores: paneles de pared blancos
(para pintar)
* Suelo laminado
* Calentadores infrarrojos
Cuarto de Baño
* Sistema de pared resistente al agua
* Mueble bajo lavabo
* Mueble de baño iluminado
* Ducha
* Inodoro suspendido
Cuarto de Lavado
* Conexiones para lavadora y secadora (encimera blanca como separación)
Entresuelo
* Accesible desde la sala de estar por una escalera