







Casa Modular de Dos Plantas X-Sense 46
La casa modular X-Sense de 46" de dos plantas ya está disponible.
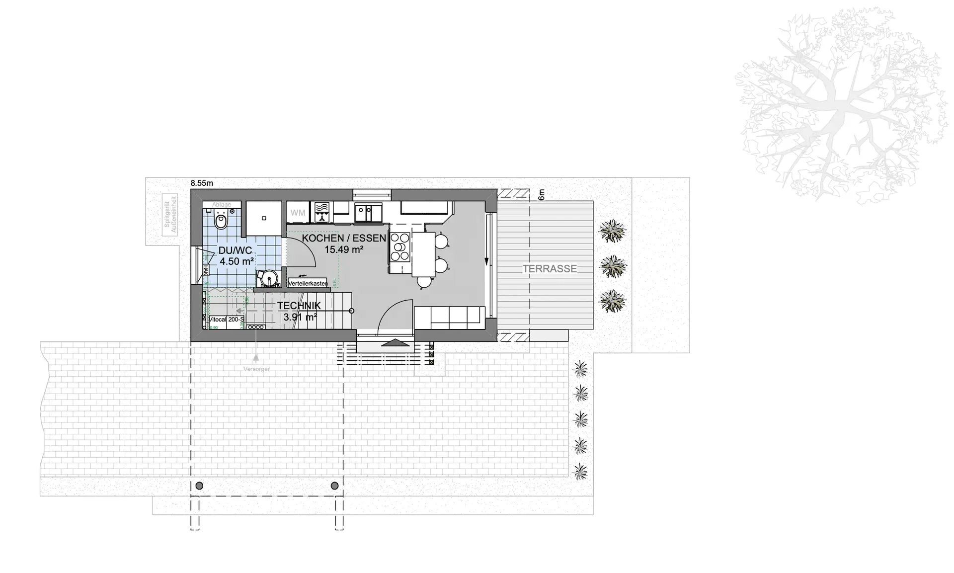
Esta obra maestra arquitectónica se distribuye en dos plantas con una superficie habitable total de 46 m², además de una terraza de 12 m² en la planta baja y una azotea panorámica de 18 m² en la planta superior.
La planta baja alberga la cocina, el comedor y la sala de estar con impresionantes puertas correderas elevables, así como un lujoso baño de diseño inteligente con inodoro, lavabo y ducha. El lavadero se encuentra junto al baño.
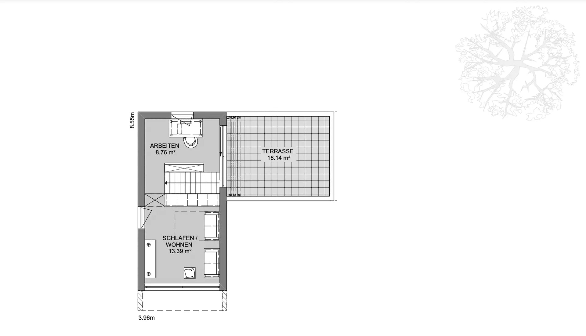
En la planta superior, encontrará la zona de relax, un espacio de trabajo independiente y un luminoso dormitorio con impresionantes vistas al exterior. La casa, de diseño arquitectónico, está coronada por una azotea panorámica. Con acceso a través de una elegante puerta corredera, la terraza acristalada de alta calidad garantiza la seguridad de todos los huéspedes y residentes.
Nuestra exclusiva casa de diseño arquitectónico, denominada "X-Sense 46", se entregará a sus futuros propietarios en un edificio nuevo y original, con suelos de baldosas y acabados de acuerdo con el contrato.
Información general (para el estándar) Plano de planta):
Superficie habitable: aprox. 46 m²
Terraza en planta baja: aprox. 12 m²
Terraza panorámica en azotea: aprox. 18 m²
Altura del techo: aprox. 2,55 m
Cimentación (placa base o cimentación opcional de pilotes roscados con cargo adicional)
Planificación de las instalaciones
Ingeniería estructural
Cálculo del aislamiento térmico
Paquete arquitectónico (incluye planificación precisa desde la solicitud hasta la aprobación)
Medición de la estanqueidad (prueba de puerta soplante)
Suministro de materiales, grúa y construcción de viviendas en toda España
Costes de construcción (andamios, sanitarios de obra, eliminación de residuos)
Cerradura del edificio en construcción ecológica, sistema de muro de difusión abierto
Cerradura del edificio impermeable (estructura del muro exterior de dentro a fuera) Exterior: nivel de instalación, OSB, vigas de madera con aislamiento de lana mineral de 20 cm, tablero de fibra de madera resistente a la intemperie
Cubierta plana con parapeto (estructura de dentro a fuera: estructura de madera con 10 cm de lana mineral, OSB, película de barrera de vapor, 20 cm de poliestireno EPS Aislamiento, capa separadora de PP, película adhesiva de EPDM de 1,5 mm)
Techo plano bajo la terraza panorámica (estructura interior: película de barrera de vapor, vigas de madera con 30 cm de lana mineral, OSB, aislamiento de poliestireno XPS, capa separadora de PP, película adhesiva de EPDM de 1,5 mm)
Paredes interiores con estructura de madera (espesor: 10 cm) sin aislamiento ni paneles
Estructura de estructura de madera para falso techo insonorizado, con aislamiento de lana mineral en el compartimento y capa de soporte de OSB
Escaleras de construcción provisionales (desmontables posteriormente)
Ventanas de triple acristalamiento de madera auténtica o plástico y dos puertas correderas elevables
Puerta exterior de seguridad de diseño, RC2 con elemento lateral de cristal o claraboya
Persianas eléctricas, integradas de forma moderna en la fachada
Un nivel aún mejor de eficiencia energética
Persianas exteriores con lamas de aluminio y guía
Impresionante ventanal panorámico en el dormitorio sin mamparas de cristal
Iluminación ambiental en la zona exterior vertical (focos LED integrados en la fachada de madera, apliques integrados en (ambos lados de la ventana panorámica)
Iluminación ambiental en la zona exterior horizontal (focos empotrados en el suelo de la terraza, focos empotrados en el suelo de la plataforma de entrada)
Sistema fotovoltaico con almacenamiento de baterías
Techos verdes
Suelo radiante eléctrico con termostato en el baño