







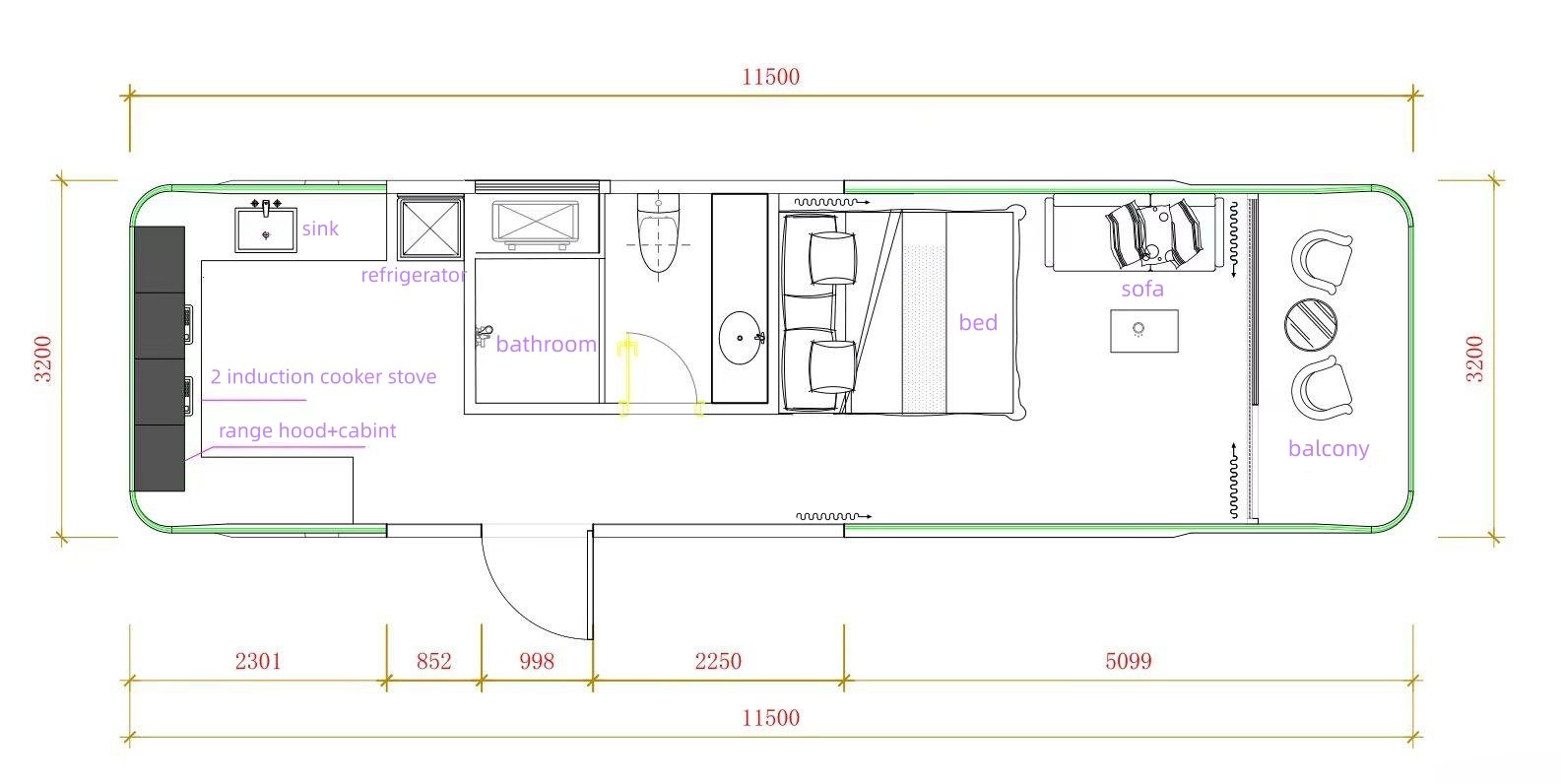
Casa Cápsula E7 con 2 camas, 1 baño y balcón
La Capsule House E7 es una unidad de alojamiento de última generación, ideal para proyectos turísticos, viviendas temporales, oficinas de lujo o espacios habitables alternativos. Con unas dimensiones de 11,5 metros de largo, 3,2 metros de ancho y 3,2 metros de alto, este modelo ofrece un diseño moderno, cómodo y completamente equipado.
Estructura exterior:
Su chasis está fabricado en acero galvanizado de alta resistencia, con un revestimiento de aleación de aluminio con tratamiento fluorocarbonado que garantiza una protección total contra la humedad y las inclemencias climáticas. Las ventanas son de vidrio templado doble, incluyendo una lucarna en vidrio laminado templado para mayor luminosidad y aislamiento. La puerta principal, de acero inoxidable con bisagras laterales, asegura robustez y elegancia.
Interior completamente amueblado:
La Capsule House E7 está equipada con paredes y techos modulares, suelo en compuesto de piedra y plástico, y un baño completo con suelo de mármol o baldosa, lavabo, espejo, inodoro, grifería moderna, ducha y sifón de suelo. Dispone también de cortinas opacas, sistema completo de fontanería y electricidad, aire acondicionado, una mesa tipo bar y un armario de entrada.
Sistema de control inteligente:
La E7 incorpora un sistema domótico avanzado con interruptor por tarjeta, escenarios preprogramados, control centralizado de luces y cortinas, control por voz y cerradura inteligente. Todo está pensado para ofrecer una experiencia de vida cómoda, conectada y futurista.
Esta unidad prefabricada se entrega lista para conectar, con una instalación rápida y sin necesidad de obra pesada. Es perfecta para hoteles cápsula, resorts sostenibles, espacios coworking o soluciones residenciales compactas de lujo.